This website is designed for portrait mode.
Please turn your device back into its vertical orientation.

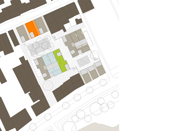
"Second row, green"

Second row, green

Living in the city
Project, 2005, Stralsund, Germany


I worked on the project: 2005
My responsibilities: I developed the project by myself, during the time at Bauhaus-University in Weimar, Germany

Stralsund is an old hanseatic city and together with Wismar a UNESCO World Cultural heritage site since 2002. The historic center is located on a small island on the coastline of the Baltic Sea. Stralsund’s economic success as a hanseatic city lead to a high urban density and a rich diversity of historic buildings with many old merchant houses, churches, lanes and squares that give the city its unique character. Out of more than 800 listed buildings in Stralsund, more than 500 can be found in the historic city center. The often costly to renovate townhouses with their typical gables constitute the atmosphere in the old city’s streets.

Townhouse – gardenhouse

The old parcel structure as a start: 7 to 9 meter-wide stripes that extend over a length of c. 80 meters between the two streets Frankenstraße and Frankenwall. While historically the block’s perimeter has always been occupied by buildings, the inner area has been repeatedly modified and overbuilt with rear buildings, workshops, storehouses, small factories, etc. The project involves two types of houses. On the streets are townhouses enclosing the block’s perimeter, and in the inner area are considerably lower and stretched “gardenhouses” for two parties. The houses are grouped around two jointly-used green courtyards. This typology of semi-public park-like green areas inside the city’s blocks can be found at various places in the historic center of Stralsund.
Open space is provided in the project with different gradations, from private roof terraces for each house, to intimate semi-public courtyards, to public street space. Parking lots are planned to take the form of an underground garage below the gardenhouses.
The gardenhouse (marked green here) has a three-sided orientiation with a length of 21.5 meters.

Gardenhouse

View into the second green courtyard with the gardenhouse.

Scheme of housing structure in the gardenhouses

The gardenhouse at Frankenstraße 4 contains two houses, each with an area of approximately 160m². To take advantage of the adjacent courtyards and to prevent severe discrimination of a single party, both houses are entwined with each other. The apartments change sides in each floor and hence participate in both courtyards, guaranteeing an equal exposure of light and sun. Finally, the length of 21.50m also brings the experience of a special extension of space and architectural quality.

Floor plans

To emphasize the communicative aspect of the two green courtyards, the more public parts of the houses are allocated to the ground floor 75 centimeters above the courtyard level. The first floor accommodates the private area consisting of two individual rooms, each with bath. The second floor has a roof terrace with an additional recreation room.

Section through the stairwell

The green courtyards are arranged in a pedestal 1.26 meters above street level, which also houses the underground parking.

Section through living space

Living space on the ground floor, individual rooms on first and second floor, roof terraces on the second floor.

Elevations

The facades are constructed as double-shell masonry, rear ventilated, with an outer shell of locally recycled brick of different shades.

Longitudinal elevation

Narrow windows on the ground floor prevent excessive visibility into the private spaces from the street. Large floor-deep glazing in the individual areas provides comfortable illumination.

Model

Scale 1:50

Model

Scale 1:50