This website is designed for portrait mode.
Please turn your device back into its vertical orientation.

This website is designed for portrait mode.
Please turn your device back into its vertical orientation.

"Forum Thomanum"

Forum Thomanum

Primary school and day care
Project, 2006 - 2007, Leipzig, Germany


I worked on the project: 2006 - 2007
My responsibilities: I developed the project by myself, during the time at Bauhaus-University in Weimar, Germany

The Forum Thomanum incorporates all institutions used by the Thomaner Chorus Leipzig. Currently, these institutions include the Thomasschule, the Alumnat as boarding house for the Thomaner, buildings for rehearsal and administration, and the Luther-Church, second only to the Thomas church at the city center as the most important place for performances in Leipzig.
For the year 2012 – the 800th anniversary of the choir – it is planned to add to the areal of the Alumnat a new primary school and day care to actively recruit new students for the choir. In addition, a double sports hall is to be erected.
The Forum Thomanum is situated in Leipzig’s Bachstraßenviertel, a neighborhood just outside the city center in the west. The area lies next to a big park, the Johannapark, and is characterized by a loose building structure with gardens.

Borders

In the north, the city block with the Alumnat borders on the busy Käthe-Kollwitz-Straße with three trolley lines. The other surrounding streets are very quiet, partly due to traffic reducing measures. The spaces for resting and circulation in the campus and the public street space are superposed; the latter is partly used as schoolyard.
This shows the special quality of the neighboorhood, since from the public street space to the interior of the buildings one passes through a gradation of different public, semi-public and private spaces. Passing borders turns into a quality, each of which with different characteristics such as fences, walls, floor material, system of paths and vegetation. This separation and at the same time superposition of street space and block space certainly has its origins in the initial design of the area as a residential district.
The project adapts this surrounding in its conception: in the urban design, where the division of primary school and day care into two buildings takes up cubature and position of the existing buildings in the Bachstraßenviertel, and in its landscape, where with the green inner area the privacy of a garden is achieved.

View to the school entrance

Next to the day care, one of the four entries leads to the main entrance of the primary school, across the schoolyard.

Urban design

Both the structures of the primary school and the day care take on the surrounding cubatures as measure. The long form of the primary school protects the block from the street noise of Kollwitzstraße and at the same time closes the gap in the block’s perimeter. The quadratic day care building blends in the more open building structure of the villas next to the Johannapark.
The original character of the block with its ring of trees and the internal garden is preserved; the new buildings are placed on the block’s perimeter and take as little ground as possible. The double sports hall has been integrated in the school building. The ground floor of the day care accommodates the school’s cafeteria.
The entrances to both buildings have not been placed facing the street directly but can be reached indirectly via the inner area of the block. The school complex opens itself to the city, but keeps a certain intimacy. Borders are being defined and must be crossed. The positioning of the new buildings together with the existing Alumnat produces differentiated exterior spaces, each of which features pleasant dimensions compared to before. The Alumnat is integrated, but does not lose its outstanding status.

View along the school to the Alumnat

To right side is the main entrance of the school, to the left the schoolyard and the day care building.

Entrance ground floor of primary school

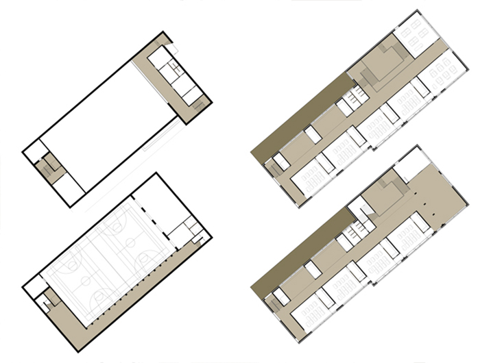
A long central foyer that can also be used as interior schoolyard divides the area of the teachers’ and school directors’ rooms from the big double sports hall on the left side. The latter occupies the main part of the ground floor and the two basement floors.
At the end of the foyer begins the main staircase which winds itself around an air space up to the second floor.

Classrooms

For reasons of noise exposure, the classrooms are strictly orientated south-east towards the inner court. They consist of an entry area, in which the children have their own compartments and can leave their jackets, and the actual classroom.
All class rooms are connected with each other by sliding doors on the facade. When the doors are opened, an enfilade of rooms is created. This connection can offer different possibilities of interaction, which is desired in primary school in addition to the regular teaching. A round tour through every floor is possible via the normal corridor and along the facade. Along the street in front of each classroom sufficient space for the rainy break is being kept free, with boxes for toys and other furniture.
Coming from the stairs, you can find the school assembly hall on the right side. It can be used in daily school life as a multipurpose recreation room, and forms part of the school’s core with its central location next to the stairs. Its equivalent space on the second floor is occupied by the music and the crafts room.

Stairwell

View from the central corridor on the first floor into the stairwell with rooflight.

Sections

The entrances of primary school and day care are situated vis-à-vis. In each of the buildings, the quieter function only starts on the first floor, while the more communicative function is accommodated on the ground floor.

Working model of the school

showing the relation among the foyer, the sports hall, and the stairwell with its circular movement.

Classrooms

The voluminous exterior wall offers seating and shelf space. View along the facade into the other classrooms.

Day care

The day care with its cubature similar to the surrounding villas also carries the character of a house to live in, aiming at a much more personal and homey feeling for the time in the afternoon. The rooms for day care in the two upper floors allow a flexible use and therefore have been planned with an approximately similar size. As a returning motif, like in the school building, a free movement along the facade is enabled. Hence, a complete circuit is possible making the space appear more spacious.
Generous corridors nearly take on the character of rooms and work as meeting spaces and recreation areas. By mirroring the floor plan in the second floor a more diversified room structure is achieved.

Day care

Corridor area with sliding doors leading to the rooms.

Elevation

Street facade of the Alumnat and courtyard elevation of the primary school.

Elevation Kollwitzstraße

The facade on Kollwitzstraße moves to the back in the area of the classrooms. The actual street facade is structured only by openings for the sports hall and adjoining rooms.

Urbanistic studies

Different arrangements of primary school, sports hall and day care. The building site is defined by the existing strong symmetry provided by the Alumnat. Its dominance was to be taken account of for the urban design.

Situation model 1:1000

The neighborhood of the Bachstraßenviertel between Kollwitzstraße and Johannapark.

Modell 1:200

Three of four accesses to the block are visible here.