This website is designed for portrait mode.
Please turn your device back into its vertical orientation.

"Living in Stralsund"

Living in Stralsund

Consolidation of an old city center
Project, 2005, Stralsund, Germany


I worked on the project: 2005
My responsibilities: The project was developed in a team of three, during the time at Bauhaus-University in Weimar, Germany

The historic center of Stralsund is located on a small island on the coastline of the Baltic Sea. In 2002, it became a UNESCO World Cultural Heritage site together with the city of Wismar. Stralsund’s economic success as a hanseatic city led to a high urban density and numerous single buildings of high quality, which to this day give the city its unique character. The undisputed historical importance saved the city from radical interventions during the times of the GDR. Despite the mainly homogeneous city image, a large number of gaps between the buildings serve as reminders of the bombings during WWII and to the demolition of unsecure structures as a result of negligence.
Apart from the desirable closing of these gaps for urbanistic reasons, this offers the opportunity to create new attractive housing in a grown urban context, as a kind of contemporary antithesis to the suburban single-family house in the green. A modern housing architecture is capable of uniting the advantages of the city of short distances with the comfort of a house on a private lot.

Townhouse – gardenhouse

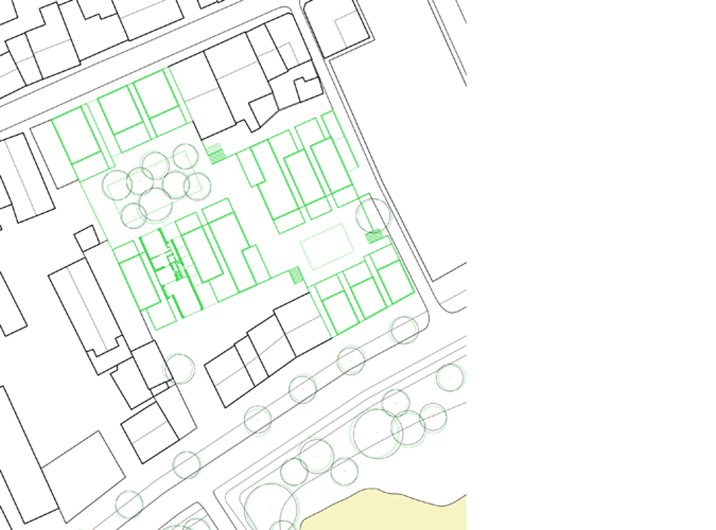
The old parcel structure as a start: 7 to 9 meter-wide stripes that extend over a length of c. 80 meters between the two streets Frankenstraße and Frankenwall. While historically the block’s perimeter has always been occupied by buildings, the inner area has been repeatedly modified and overbuilt with rear buildings, workshops, storehouses, small factories etc. The project involves two types of houses. On the streets are townhouses enclosing the block’s perimeter, and in the inner area are considerably lower and stretched “gardenhouses” for two parties. The houses are grouped around two jointly-used green courtyards. This typology of semi-public park-like green areas inside the city’s blocks can be found at various places in the historic center of Stralsund.
Open space is provided in the project with different gradations, from private roof terraces for each house, to intimate semi-public courtyards, to public street space. Parking lots are planned to take the form of an underground garage below the gardenhouses.

Townhouses

View into Frankenstraße with the three new townhouses.

Gardenhouses

View of the first green courtyard with trees and a row of gardenhouses.

Roof terraces

View over the roof terraces of the townhouses to the roofs of the historic city.

Elevations Frankenstraße and Frankenwall

L-shaped facades and passage into the green courtyard’s structure and facade elevations along Frankenstraße and Frankenwall.

Sections

Longitudinal and cross section through the block show the development of heights, open spaces, and the underground parking below the gardenhouses.

Scheme of housing structure in the gardenhouses

To take advantage of a two- to three-sided orientation and exposure to light in addition to the whole depth of the building, the gardenhouses are organized as two entwined structures. Compared to a standard back-to-back typology, the houses offer a special quality.