This website is designed for portrait mode.
Please turn your device back into its vertical orientation.

"Les Résidences du Pré-Babel"

Les Résidences du Pré-Babel

with Gigon/Guyer Architects
Living in a park
Built, 2003 - 2008, Geneva, Switzerland


I worked on the project: 2005 - 2006
During these project phases:
- Provisional Construction Documents
- Definitive Construction Documents
- Beginning of Construction Administration
My responsibilities: In a team of four, all drawings and details for the different stages of construction, while at the same time designing important parts of the interior, like kitchens, bathrooms, dressing rooms, stairs, parking, integration of all technical equipment etc. I also participated in the first five months of construction administration, coordination with contractors in the office as well as on site in Geneva.

Les Résidences du Pré-Babel is a housing project in a suburban community east of the city center of Geneva. Six new buildings will be erected on the grounds of a former sports field, three three-storey apartment buildings in the luxury sector (Pré-Babel), and three more high rises of nine to eleven floors with apartments in a moderate price sector (Grange Canal).

Situation

The six apartment buildings stand in a park with old trees not far from Lake Geneva. The three buildings on the right side form the first phase of construction Pré-Babel with three three-storey high apartment buildings that offer 28 owner-occupied flats in the luxury price sector.
To keep the quality of living in a park, the buildings are loosely distributed over the area, thus preserving most of the green area and the original trees. Landscaped paths lead to the buildings’ entrances with large entrance halls that are slightly sunken into the earth. The accesses for motorized traffic branch-off shortly behind the areas borders into the underground parking and lead subterraneously to the buildings. In this way, traffic is kept out of the whole park. The six apartment buildings are supplied with three underground parking areas in total.
Position and form of the buildings mould the outside space and secure a three or four sided exposure to light of each flat.

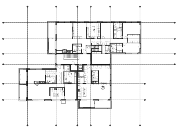
Standard floor plan

A naturally lit staircase with elevator leads to two to three apartments of different size on each floor (here three). The apartments themselves are large with a room height of 2.7 meters, and have a three or four-sided orientation. Public and private areas are clearly separated. The individual rooms each have their own bath room and dressing area.
Each apartment has a large roofed balcony with an additional winter garden. The large apartment on the uppermost floor has private access to the roof terrace (see the above apartment).

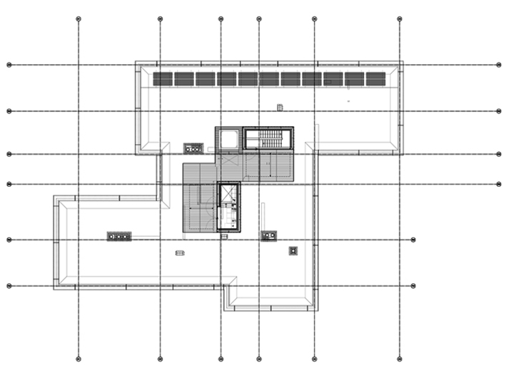
Roof terrace

A pavilion containing a staircase leads to the private roof terrace with ample space. A second pavilion houses an extra kitchen and storage for furniture. On some roof terraces a small pool is installed. Apart from sun collectors in the upper part the remaining roof is planted with mountain flowers and grasses.

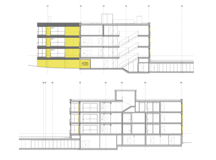
Section

through the staircase and the roof exit. The building’s entrances and the access to the underground parking lie in the slightly sunken ground floor. Balcony and winter gardens are thermotechnically separated constructions.

Elevations

On the outside, all buildings are hold together by a common architectural language. Curtain-type prefabricated concrete elements structure the facade into horizontal and vertical stripes and give it a certain gravity and volume. The concrete elements fully dyed with color pigments differ in their intensity as a result of the production process. The earthy and slightly greenish yellow of the vertical elements takes up color shades from the surrounding tree and park.

Entrance area

Visualization of an apartment’s entrance area with visual relations into the different rooms.

Balcony and winter garden

Visualization of the roofed balcony and winter garden as a transition area between inside and outside.

Facade construction and balconies/winter gardens

The prefabricated and fully dyed concrete elements are installed on the isolated outside walls by anchors. All windows are room-high sliding windows with aluminium frame, the balustrades are glazed. All glasses are slightly mirrored on the surface and reflect the surrounding trees.
Balconies and winter gardens are thermotechnically decoupled and fixed in the concrete ceilings. They are separated by a light glass wall.

Construction site

Installation of the prefabricated concrete elements during structural works as part of the exterior wall.

Living in a park

View of the area with paths.

Balcony and winter garden

View of balcony and winter garden open to the outside space.

Facade

Dyed grey horizontal stripes and yellow vertical elements structure the facade, large aluminium sliding windows give excellent views and illumination.

House entrance

on the slightly sunken ground floor.

Staircase

[text to follow shortly]

Staircase

[text to follow shortly]

Staircase

Highly polished CNS, light grey terrazzo and dark oiled oak provide contrast to the exposed concrete surfaces.

Apartment entrances

The room-high dark-oiled oak doors are flanked by vertical light panels.

Living room

with room-high sliding windows. Wall and ceiling are painted white. The floor is covered with parquet of oiled and smoked oak.

Balcony and winter garden

View from the balcony into the winter garden. The floor covering keeps the same level inside and outside.

Kitchen

Interior design of kitchen and bathrooms could be selected freely by purchasers out of different suggestions.

Bathrooms

The bathrooms are each covered with natural stone or mosaic tiles.