This website is designed for portrait mode.
Please turn your device back into its vertical orientation.

"Platform"

Platform

with Gigon/Guyer Architects
Office building
Built, 2007 - 2011, Zurich, Switzerland


I worked on the project: 2008 - 2010
During these project phases:
- Provisional Construction Documents
- Definitive Construction Documents
- Construction Administration
My responsibilities: In a small team of three architects, we planned, designed and coordinated all phases of construction from the early schematic design in 2007 to the final hand-over to the client in early 2011. Being the second principal architect next to the project leader, I had the opportunity to draw the plans for nearly all parts of the building, and after a bidding process in 2009, to coordinate the construction with the contractors, in meetings and directly on site in Zurich.

The office building Platform is part of the Maag-Areal (red triangle) in the new development area Zurich West. From 2011 onwards, Platform will be the new Zurich headquarters of consulting agency Ernst + Young.
Four buildings in total will be erected on the site of former Zahnräder Maag AG (a former cogwheel factory), all designed by Gigon/Guyer Architects. The competition for three of the buildings was won in 2004, only few years later the areal’s proprietor and investor, Swiss Prime Site, commissioned Gigon/Guyer with the erection of another fourth office building, Platform. Groundbreaking for the area was in November 2004. Completion is planned for summer 2011. The area lies directly on Zurich’s Hardbrücke train station, guaranteeing excellent connection to public transport.

Maag-Areal

The core of the new Maag-Areal will be Prime Tower, a high-rise that with its 36 floors and a height of 126 meters will be the tallest building in Switzerland. On the right side is the office building Cubus. In the center is the building Diagonal, a renovation of a preserved industrial building of Maag AG with galleries and restaurants. On the left next to the rail tracks is the office building Platform. The buildings are grouped around a new public open space called Maagplatz. Parallel to the tracks on the left side will be the Gleisbogenweg – a public path planned by the city of Zurich that will cross the whole new development area of Zurich West along an old industrial train track. On the ground floor of Platform, there is a passage to the Geisbogenweg and to a pedestrian underpass to Hardbrücke station.

Urban model

of Maag-Areal with Prime Tower, Platform, Diagonal and Cubus.

View from Hardbrücke station

The building Platform is characterized by slight ledges in its facade which differ in size on each floor. In combination with the double-shell glass facade it gives the building a crystalline appearance.

View on Maagplatz

with Platform and Prime Tower (to the right).

View from Zahnradstraße

to the building Platform with one of its two cut-in courtyards. To the left is the building Diagonal.

Cantilevers

The four elevations with the cantilevers, marked green (first floor), yellow (second and third floor), blue (fourth floor) and red (fifth and sixth floor) in the floor plan.

Ground floor

The ground floor is reserved largely for public use. The central atrium extends upward through all floors (center top, with reception). The space also features a gastronomic area with bar and restaurant (left). The detached part of the building, the only part not used by Ernst + Young, will house a restaurant and other services.
Further areas used only by Ernst + Young include an auditorium (center top), a mail room with mail-administrating center, a call enter, and the delivery zone.

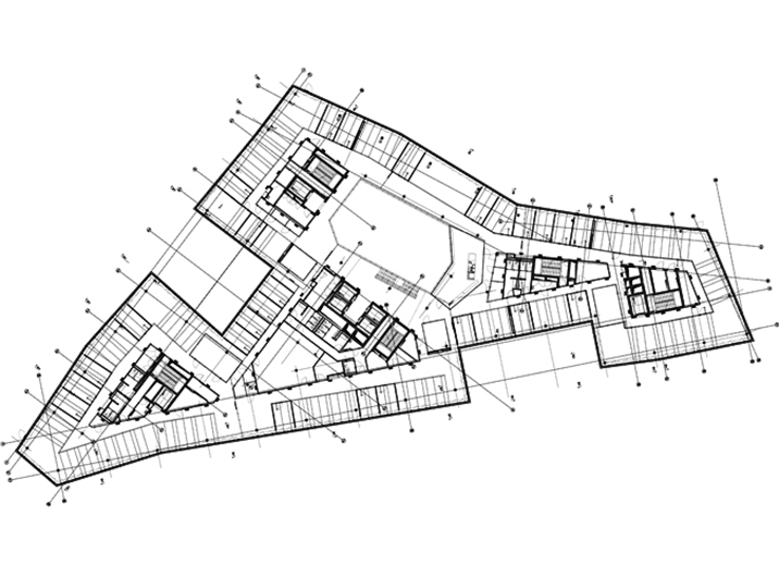
Standard floor (here fourth floor)

Five circulation cores give the building its structure. Core 2 in the center directly next to the atrium contains the four main elevators. Around the cores are grouped all secondary rooms like storage- and sanitarian areas, copier room, technical rooms, etc., as well as glazed retreating and meeting rooms.
The office space meanders along the glass facade around the whole building with a depth of approximately 6 meters. It can be divided into single offices or shared office space, for on each of the facade’s axes a drywall can be connected. Hence, the division of the office space always meets the tenant’s needs and can also be changed later on without damages. All technical installations (lighting, air conditioning, sunblinds, electronics etc.) are designed to meet the demands of maximal and flexible office use.
Four larger, fully glazed conference rooms on each floor are at free disposal to the respective departments. Next to the atrium a recreation room with a small kitchen is provided for the employees on each floor.

Section through the atrium

Next to the two-storey-high entrance hall, the atrium extents over the whole building height and is protected from weather by a filigree roof light.

Section through the courtyard

to Zahnradstraße. The courtyards were cut into the volume for the purpose of a better exposure to light, but they also create a longer facade projection for more work spaces with a pleasant atmosphere.

Atrium

View into the central atrium with reception desk (below left) and staircase to the first floor. The inclined balustrade glazing can take five different positions and creates a kaleidoscopic effect. The walls around the atrium are cased by natural stone. The floor is covered with terrazzo.

Restaurant and bar

Model of the restaurant and bar area on the ground floor with design option. The bar occupies an area with a height of two storeys. The restaurant has a room height of a single storey. Furniture and counters are designed in a calm appearance, while the walls will be entirely decorated by an artist in a colorful, room-embracing way. A special, solely for Platform designed illumination will be installed in different heights on the ceiling, here in form of a suspended lamp.

Clients lobby

Sketch of the clients lobby on the first floor with seating areas and retreating rooms on the room’s walls. Ernst + Young’s clients can reach the first floor with a consultant and will accompanied after a short stay in the clients lobby into one of the retreating or conference rooms.
The walls are clad in natural stone. On the floor is parquet made of oiled and smoked oak.

Office areas

Sketch of a standard office area with to the corridor fully glazed single offices and shared office space. The core’s walls are designed according to a color concept.
Heating and cooling is managed by ceiling panels, illumination on the corridor’s walls by indirect wall lights, in the office area by floor lamps.
The walls and the ceiling are painted white in the office area. The floors covered with anthracite-colored carpeting.

Facade and construction

The office building Platform is a standard concrete construction with five central cores and concrete columns in the remaining areas. All interior walls are drywalls. All technical installations run inside the double floor, and on the uppermost floor are partly inlaid in the ceiling. Heating and cooling is managed by roof panels to be regulated by the users directly and hang below the painted raw concrete ceiling. The whole building is equipped by a full sprinkler protection.
The facade is fully glazed with a double-layer construction. The windows in the inside layer can be opened by the users. The sunblind that can also be regulated from each work place is installed in the space between the two layers.

1:1 facade model

on construction site. The aligned glazing of balustrades and the space in between is highly mirrored and supports the cubature of the building. The balustrade glazing is enameled on the back side.

Construction site

of Platform viewed from Prime Tower. Atrium and courtyards can be seen clearly.

Roof light of the atrium

during installation. The remaining atrium still is scaffolded.

Office space

near the facade with inclined columns for the cantilevers.

Stairwell

Concreting works on one of the stairs.

Ceiling formwork

with regulating boxes for heating and cooling, sprinklers and electro wires.

Completed builing, view from north

[text to follow shortly]

Completed builing, view from west

[text to follow shortly]

Completed builing, view from south

[text to follow shortly]

Atrium

[text to follow shortly]

Atrium

[text to follow shortly]

Atrium

[text to follow shortly]