This website is designed for portrait mode.
Please turn your device back into its vertical orientation.

"Löwenbräu"

Löwenbräu

with Gigon/Guyer Architects
Apartments, offices, galleries
Built, 2006 - 2014, Zurich, Switzerland


I worked on the project: 2008
During these project phases:
- Provisional Construction Documents
My responsibilities: In a team of 10 architects, I participated in compiling all the necessary construction documents for bidding to a general contractor, called „Total Services Contractor“ in Switzerland, after which only minor adjustments to the design and drawings can be made.

The Löwenbräu-Area is located in the city center of Zurich in the new development area Zurich West. The brewing activities were suspended in the 1980s, consequently installing new uses in the old buildings (mainly galleries and exhibition spaces). Over the years, the Löwenbräu became one of Zurich’s most important sites for internationally known galleries. This extraordinary success aroused the idea of a further densification and application of new functions, mainly high-class housing and office space. Exhibition and galleries were also to be extended with an additional superstructure. During planning, special focus was always given to keeping alive the successful use by galleries and the accompanying possibilities of artistic experiment.
As industrial area, the history of Löwenbräu always has been a history of remodelling, extension and substitution, simultaneously protecting the historic main building.

Elevation on Limmatstraße

Three new buildings will be added to the Löwenbräu in future: on the left side the new western gallery building, in the center a high-rise with apartments and on the right the new eastern office building.

Transformation

Only a few of the existing parts of Löwenbräu will be demolished for the three new buildings. The old brewery building on Limmatstraße and the silos are buildings listed under special protection.

Program of uses

The whole left part of the complex with the new western building will still be used for exhibitions and galleries. The central high-rise will offer apartments on an L-shaped ground and the brewery building together with the new eastern building will house office space.

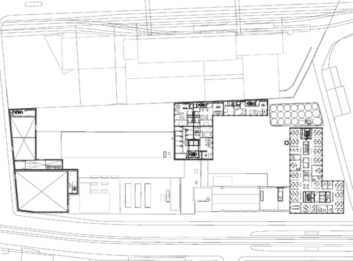
Ground floor

Two inner courtyards structure the complex. From those areas free of traffic one can gain access to the different buildings. As with the long facade on Limmatstraße, it is here in the new public places where the Löwenbräu shows its new face.

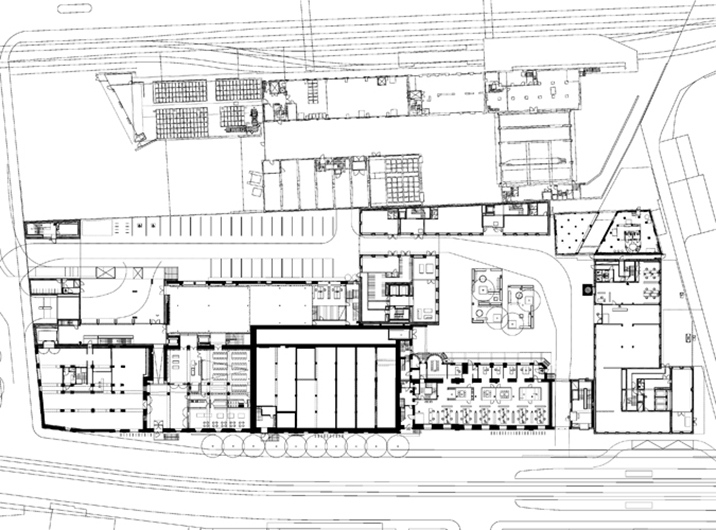
First floor

The different uses are separated clearly. Crossings between the building complexes are not planned.

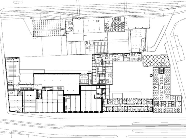
Fourth floor

The three extensions rise above the roofs of the existing buildings on L-shaped floor plans.

Floors 9 -17

The central high-rise will characterize the distant appearance of the Löwenbräu in the future. Each floor accommodates one to four apartments.

Gallery extension

on the roof of the ancient workshops. The superstructure is the main extension for gallery use in Löwenbräu.

Inner courtyard

with the main brewery building, the eastern office building (red), the old silos and the lateral wing of the central high-rise (black).

Section through the central high-rise

With its cantilever on the 9th floor, the central high-rise towers above the other buildings.

Longitudinal section

through the new circulation for the galleries, the central high-rise and the eastern office building.

Cross section

through the gallery extension, the main brewery building and the new eastern office building.

Entrance hall high-rise

with exit to the central courtyard.

Loggia central high-rise

On the southern facade of the high-rise, loggias are installed on each floor with large windows that can be stored under the ceiling. This room consequently can be used as loggia or winter garden according to the weather.

Penthouse

The top floors are occupied by a two-storey apartment with outside space open to the sky.

Main brewery building

The old production halls will be used as office space.

Eastern office building

with flexible office space for one or more tenants.

Gallery extension

in a cube of white exposed concrete.

Facade high-rise

The facade of the central high-rise is clad with rippled ceramic tiles covered with a glossy black glaze. Aluminium windows arranged in pairs with lateral ventilation openings can be opened either by automatically moving to the ceiling or by exposure.
The profiling of the glossy ceramic tiles and the slightly mirrored glazing will give the building a dark shimmering appearance that towers above the remaining buildings.

Facade eastern office building

Corresponding to the facades of the central high-rise the new eastern office building is also clad with ceramic elements. The wavy shape is slightly flatter; the glaze color blends with the shades of the existing bricks. The aluminium windows with lateral ventilation openings can be opened by exposure.

Model

View of the complex looking over the rail tracks with the silos in the foreground.

Completed building

[text to follow shortly]

Completed building

[text to follow shortly]

Completed building

[text to follow shortly]

Completed building

[text to follow shortly]